Rustig gelegen woning met bijgebouw in Molenbeersel
Huurprijs
In een rustige straat in Molenbeersel vinden we deze verrassend lichtrijke woning met een sterke extra troef: een volledig ingericht bijgebouw dat tal van mogelijkheden biedt.
De woning zelf is opgebouwd als split-level en voelt daardoor open en speels aan. De leefruimte sluit mooi aan op de keuken en eethoek, met directe toegang tot het overdekt terras. Een aangename plek waar binnen en buiten naadloos in elkaar overlopen.
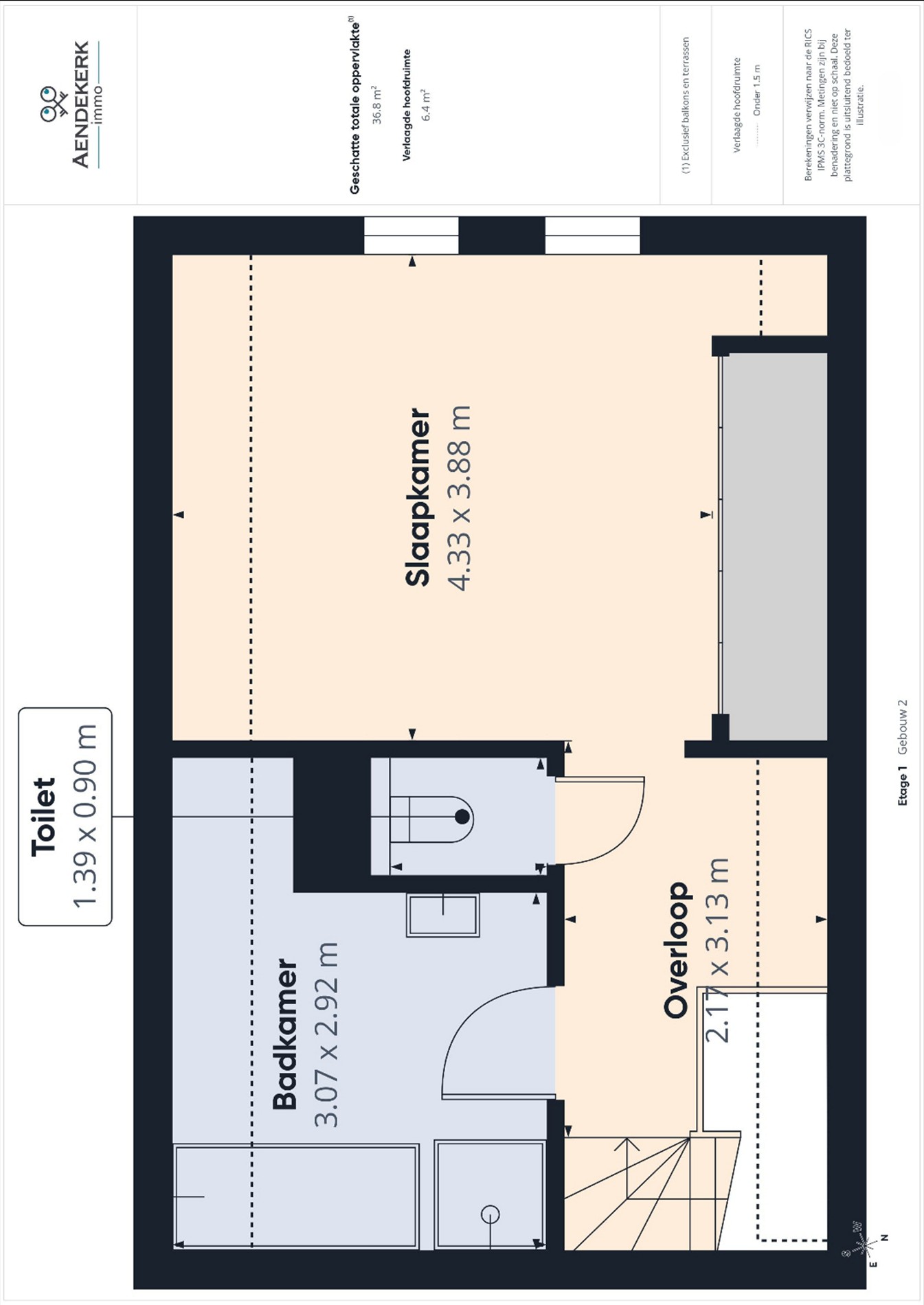
Verder beschikt de woning over drie volwaardige slaapkamers en een ruime badkamer. De indeling is praktisch en comfortabel, met voldoende ruimte voor een gezin. De aanwezige kelder zorgt bijkomend voor handige opslagruimte.
Achteraan in de tuin bevindt zich het bijgebouw. Deze extra ruimte kan perfect dienen als gastenverblijf voor familieleden, maar ook als hobbyruimte of werkplek aan huis.
De tuin zelf is aangenaam en rustig gelegen, met voldoende privacy en een groen karakter.
Zoek je een woning waar je rustig kan wonen en tegelijk extra ruimte hebt om te werken of je hobby uit te bouwen? Dan is ... dit een eigendom die je zeker gezien moet hebben. Lees meer Verberg
De woning zelf is opgebouwd als split-level en voelt daardoor open en speels aan. De leefruimte sluit mooi aan op de keuken en eethoek, met directe toegang tot het overdekt terras. Een aangename plek waar binnen en buiten naadloos in elkaar overlopen.
Verder beschikt de woning over drie volwaardige slaapkamers en een ruime badkamer. De indeling is praktisch en comfortabel, met voldoende ruimte voor een gezin. De aanwezige kelder zorgt bijkomend voor handige opslagruimte.
Achteraan in de tuin bevindt zich het bijgebouw. Deze extra ruimte kan perfect dienen als gastenverblijf voor familieleden, maar ook als hobbyruimte of werkplek aan huis.
De tuin zelf is aangenaam en rustig gelegen, met voldoende privacy en een groen karakter.
Zoek je een woning waar je rustig kan wonen en tegelijk extra ruimte hebt om te werken of je hobby uit te bouwen? Dan is ... dit een eigendom die je zeker gezien moet hebben. Lees meer Verberg