Ruime gezinswoning met grote tuin in landelijke omgeving van Kinrooi, vlakbij Nederland
Vraagprijs
Ben je op zoek naar een ruime gezinswoning met een grote tuin en veel privacy? Dan is deze vrijstaande woning in Molenbeersel, een rustige deelgemeente van Kinrooi, zeker het ontdekken waard.
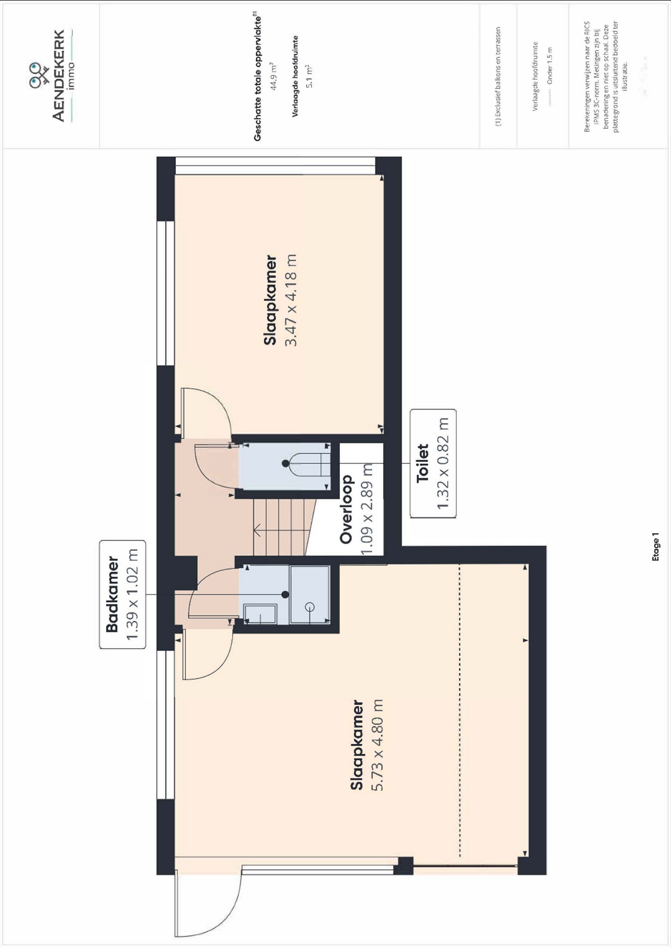
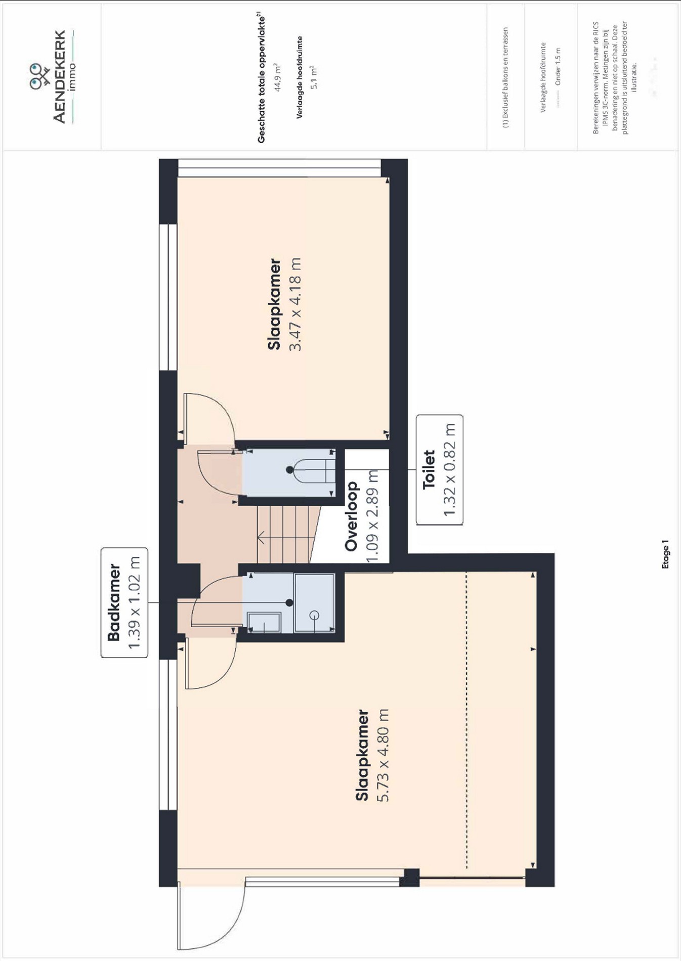
De woning werd gebouwd in 1975 en staat op een perceel van maar liefst 1.920 m². Met een bewoonbare oppervlakte van 196 m² en vier slaapkamers biedt dit huis alle ruimte die je nodig hebt voor een comfortabel gezinsleven.
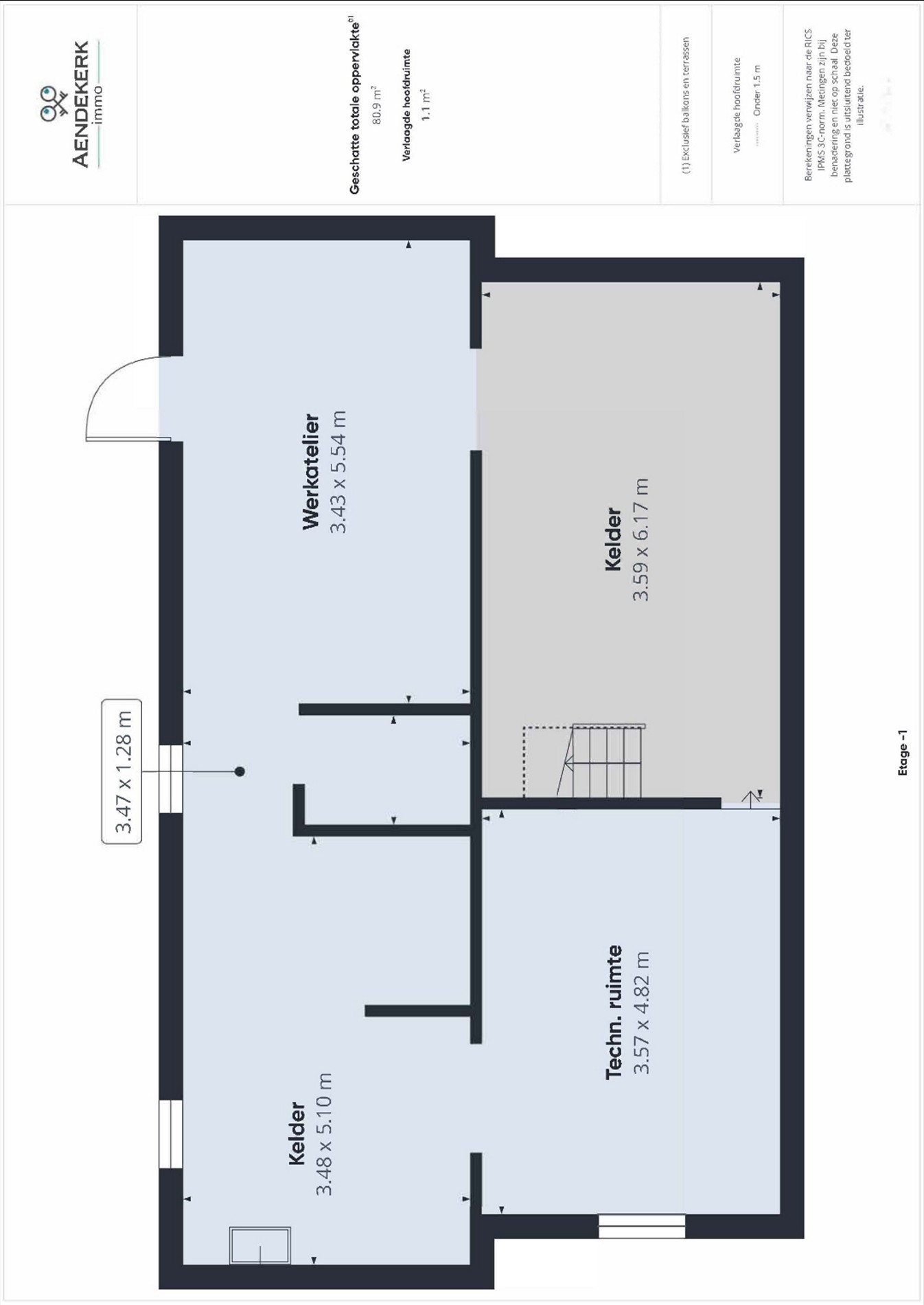
Binnen kom je via de inkomhal in de gezellige leefruimte met open haard. De keuken sluit mooi aan. Hier geniet je ook van een mooi uitzicht op de achtertuin. Op het gelijkvloers vind je verder nog twee slaapkamers, een badkamer en een dubbele garage. De verdieping telt nog eens twee ruime slaapkamers, een douchekamer en een apart toilet. Extra bergruimte nodig? Geen probleem: de woning is volledig onderkelderd.
De grote tuin rondom zorgt voor veel privacy en biedt tal van mogelijkheden voor tuinliefhebbers of gezinnen die houden van het buitenleven. Op het terras geniet je in ieder geval van alle rust van de zon en het ... groen.
De woning heeft een EPC-label D (391 kWh/m²jaar). Er is dan ook geen renovatieplicht.
De ligging van deze woning is rustig en landelijk. De Nederlandse grens ligt op minder dan 2 km, waardoor ook de A2 vlot bereikbaar is. Winkels, scholen en voorzieningen vind je in de nabije omgeving van Kinrooi.
Troeven van deze woning:
- Ruim perceel van 1.920 m²
- Vier slaapkamers en 196 m² bewoonbare oppervlakte
- Volledig onderkelderd en dubbele garage
- Grote tuin met veel privacy
- Rustige, landelijke ligging vlakbij de Nederlandse grens
Benieuwd om deze woning zelf te ontdekken? Neem gerust contact met ons op voor een bezoek. Lees meer Verberg
De woning werd gebouwd in 1975 en staat op een perceel van maar liefst 1.920 m². Met een bewoonbare oppervlakte van 196 m² en vier slaapkamers biedt dit huis alle ruimte die je nodig hebt voor een comfortabel gezinsleven.
Binnen kom je via de inkomhal in de gezellige leefruimte met open haard. De keuken sluit mooi aan. Hier geniet je ook van een mooi uitzicht op de achtertuin. Op het gelijkvloers vind je verder nog twee slaapkamers, een badkamer en een dubbele garage. De verdieping telt nog eens twee ruime slaapkamers, een douchekamer en een apart toilet. Extra bergruimte nodig? Geen probleem: de woning is volledig onderkelderd.
De grote tuin rondom zorgt voor veel privacy en biedt tal van mogelijkheden voor tuinliefhebbers of gezinnen die houden van het buitenleven. Op het terras geniet je in ieder geval van alle rust van de zon en het ... groen.
De woning heeft een EPC-label D (391 kWh/m²jaar). Er is dan ook geen renovatieplicht.
De ligging van deze woning is rustig en landelijk. De Nederlandse grens ligt op minder dan 2 km, waardoor ook de A2 vlot bereikbaar is. Winkels, scholen en voorzieningen vind je in de nabije omgeving van Kinrooi.
Troeven van deze woning:
- Ruim perceel van 1.920 m²
- Vier slaapkamers en 196 m² bewoonbare oppervlakte
- Volledig onderkelderd en dubbele garage
- Grote tuin met veel privacy
- Rustige, landelijke ligging vlakbij de Nederlandse grens
Benieuwd om deze woning zelf te ontdekken? Neem gerust contact met ons op voor een bezoek. Lees meer Verberg