Ruime gezinswoning met 6 slaapkamers en tuin met zwembad in Kessenich
Vraagprijs
In een rustige woonomgeving in Kessenich, vlakbij de Nederlandse grens, vind je deze bijzonder ruime gezinswoning met maar liefst zes slaapkamers, een grote tuin met zwembad en een doordachte indeling.
De woning biedt een mooie combinatie van ruimte, comfort en praktische leefzones, waardoor ze perfect geschikt is voor grotere gezinnen of voor wie extra kamers wenst voor hobby, werk of logies.
Indeling
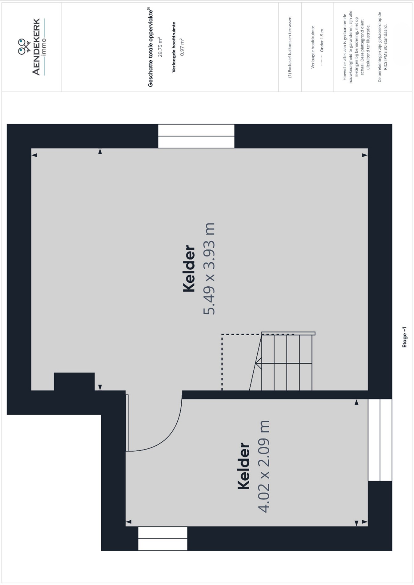
- Kelderverdieping
De woning beschikt over twee praktische kelderruimtes die ideaal zijn als opslagruimte, hobbyruimte of wijnkelder.
- Gelijkvloers
Via de inkomhal kom je in de ruime leefruimte met aangename lichtinval.
De vernieuwde keuken (2026) vormt een centraal element in de woning en biedt voldoende plaats voor een gezellige eethoek met zicht op en rechtstreekse toegang tot de tuin.
Verder vinden we op het gelijkvloers nog een toilet, een badkamer/wasplaats, twee slaapkamers waarvan één met dressing en een inpandige garage.
- Verdieping
De verdieping biedt verrassend veel ruimte met een overloop, een berging/dressing en vier ... volwaardige (slaap)kamers. Verder vind je hier een ruime badkamer met ligbad, douche, badkamermeubel en toilet.
- Buitenruimte
Achter de woning ligt een grote, volledig omheinde tuin waar privacy en ontspanning centraal staan.
Het zwembad en de pergola maken dit een ideale plek om tijdens de zomermaanden volop van het buitenleven te genieten.
Extra troeven
- vernieuwde keuken (2026)
- gunstig energielabel
- warmtepompboiler en PV-installatie
- elektriciteitsinstallatie conform
- rustige ligging nabij de Nederlandse grens
Deze woning biedt bijzonder veel ruimte en mogelijkheden voor wie comfortabel wil wonen in een rustige omgeving met vlotte verbinding naar Nederland en de omliggende gemeenten.
Benieuwd naar de mogelijkheden van deze woning? We laten je deze eigendom graag ter plaatse ontdekken. Lees meer Verberg
De woning biedt een mooie combinatie van ruimte, comfort en praktische leefzones, waardoor ze perfect geschikt is voor grotere gezinnen of voor wie extra kamers wenst voor hobby, werk of logies.
Indeling
- Kelderverdieping
De woning beschikt over twee praktische kelderruimtes die ideaal zijn als opslagruimte, hobbyruimte of wijnkelder.
- Gelijkvloers
Via de inkomhal kom je in de ruime leefruimte met aangename lichtinval.
De vernieuwde keuken (2026) vormt een centraal element in de woning en biedt voldoende plaats voor een gezellige eethoek met zicht op en rechtstreekse toegang tot de tuin.
Verder vinden we op het gelijkvloers nog een toilet, een badkamer/wasplaats, twee slaapkamers waarvan één met dressing en een inpandige garage.
- Verdieping
De verdieping biedt verrassend veel ruimte met een overloop, een berging/dressing en vier ... volwaardige (slaap)kamers. Verder vind je hier een ruime badkamer met ligbad, douche, badkamermeubel en toilet.
- Buitenruimte
Achter de woning ligt een grote, volledig omheinde tuin waar privacy en ontspanning centraal staan.
Het zwembad en de pergola maken dit een ideale plek om tijdens de zomermaanden volop van het buitenleven te genieten.
Extra troeven
- vernieuwde keuken (2026)
- gunstig energielabel
- warmtepompboiler en PV-installatie
- elektriciteitsinstallatie conform
- rustige ligging nabij de Nederlandse grens
Deze woning biedt bijzonder veel ruimte en mogelijkheden voor wie comfortabel wil wonen in een rustige omgeving met vlotte verbinding naar Nederland en de omliggende gemeenten.
Benieuwd naar de mogelijkheden van deze woning? We laten je deze eigendom graag ter plaatse ontdekken. Lees meer Verberg